
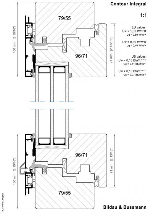
Profile
Linea Integra
Product: Bildau & Bussmann
Material: Aluminum-Clad Wood
Linea Integra Bildau & Bussmann Window Profile
Technical Information
| Title | Type | Download |
|---|---|---|
| Bildau AAMA - Fixed IV79 Intertek Testing | Lab Testing | Download (1.67 MB) |
| Bildau AAMA - Tilt-Turn IV79 Intertek Testing | Lab Testing | Download (2.01 MB) |
| Bildau ASTM E90 OITC 37 - Laminated Glass | Lab Testing | Download (1.07 MB) |
| Bildau ASTM E90 - Sound Transmission Loss Test | Lab Testing | Download (29.40 KB) |
Certifications
FSC® Certified
Bildau & Bussmann is an FSC® Certified Company. They offer window and door frames made from sustainably harvested wood, certified by the Forest Stewardship Council®.
NFRC Certified
Bildau & Bussmann offers NFRC window and door frames. The NFRC rates windows based on U-factor, Solar Heat Gain Coefficient, Visible Transmittance and Air Leakage.
Customization
Choose an option below to learn more:







